
Modular Range
Where innovation meets construction - our modular house designs offer flexibility and efficient building methods, allowing your dream home to be on site sooner.
5-bed Double Storey
Residence
A double-storey modular build has never been easier or more stylish. Set along the Murray River, this beauty features 5-bedrooms, 3 bathrooms, 2 balcony/alfresco spaces, and a very generous main bedroom space with all the luxury finishes.
Build Details
05
Bedroom
03
Bathroom
02
Modules
247m² - Total Area
Build Size
12-16 weeks
Build Duration
$691,990 inc gst
Pricing From
-
-
-
All delivery costs, council fees, and install/connection of services on site. Additionally, any site excavation or crane hire required is excluded from the price.
-
X Weeks* Subject to work load.
All prices include GST. Prices are based on a standard skillion roof.
2-Module Home Designs
Catering for a larger block, our modular homes deliver on space and amenities, providing a large home with a range of finishes available. Built completely off-site in our Moama factory, our modular range reduce the disruption and streamline the building process.
Build Details
From 169m² - Total Area
Build Size
Build Duration
14-16weeks
03
Bedroom
02
Bathroom
03
Modules
$470,000 inc gst
Pricing From
-
-
-
All delivery costs, council fees, and install/connection of services on site. Additionally, any site excavation or crane hire required is excluded from the price.
-
X Weeks* Subject to work load.
All prices include GST. Prices are based on a standard skillion roof.
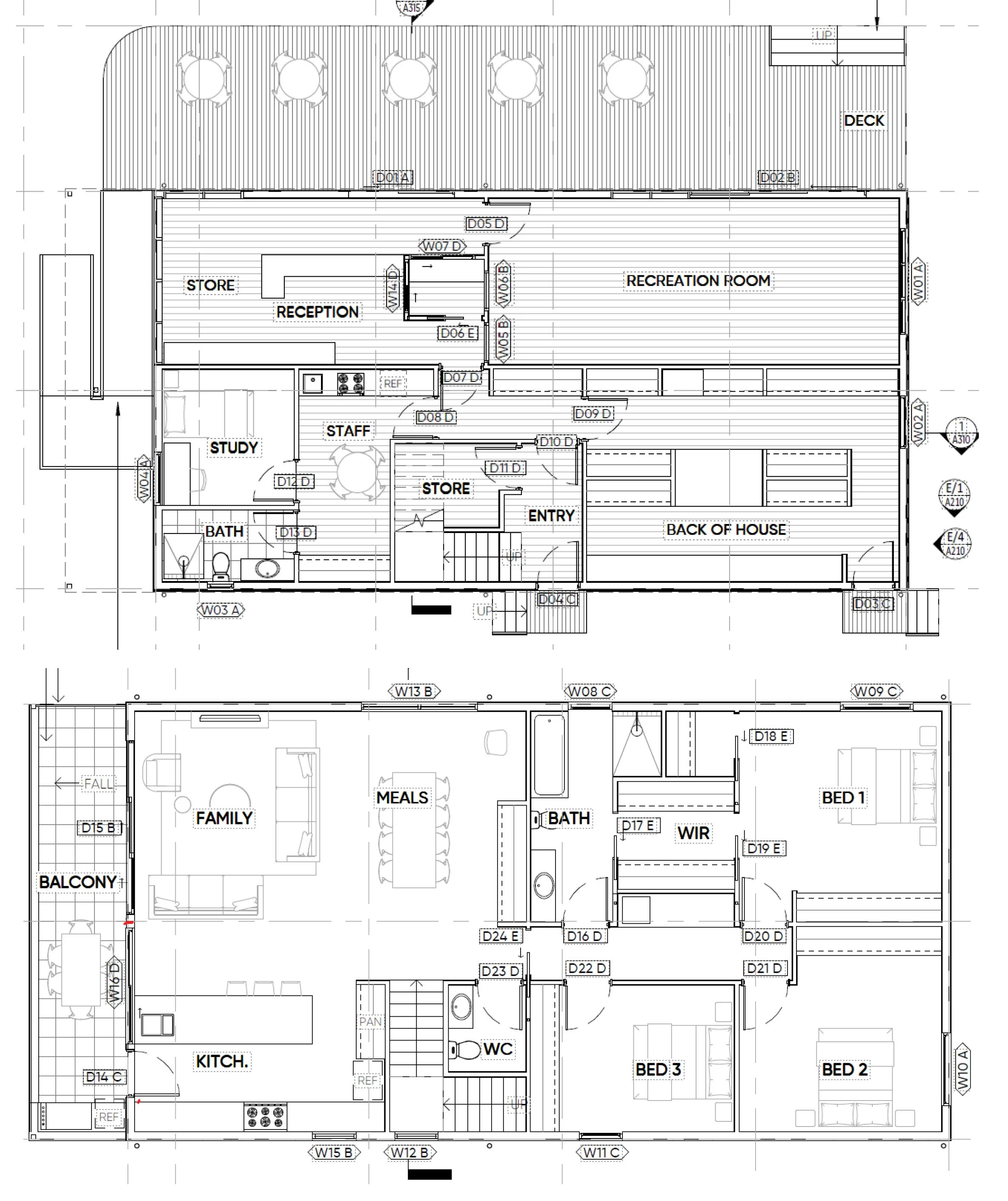
Holiday Park Reception
& Residence
Built in 4 modules and joined on site, this build features a reception area and rec room with staff amenities downstairs, as well as a generous 3-bed 2-bath upstairs residence with an expansive balcony, really enhancing the indoor-outdoor lifestyle.
Build Details
Build Size
346m² - Total Area
Build Duration
16-18weeks
03
Bedroom
03
Bathroom
04
Modules
$854,990 inc gst
Pricing From
-
-
-
All delivery costs, council fees, and install/connection of services on site. Additionally, any site excavation or crane hire required is excluded from the price.
-
X Weeks* Subject to work load.
All prices include GST. Prices are based on a standard skillion roof.